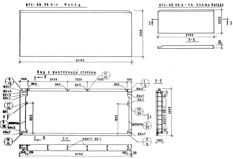
НТ1-68.29.3-1

Чертеж изделия:
Характеристики изделия:
ПараметрЗначение
Длина6795 мм
Ширина300 мм
Высота2900 мм
Масса7450 кг
Нормативный документСерия 1.132-1
Цена:
Рассчитать стоимость

НТ1-68.29.3-1   Наружная стеновая панель торцевая по Серии 1.132-1.