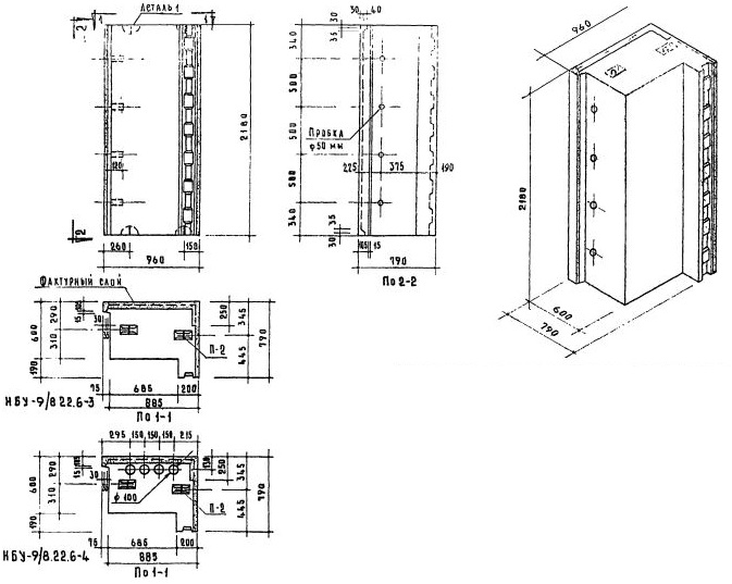
НБУ-9/8.22.6-4
Характеристики изделия:
| Параметр | Значение |
|---|---|
| Длина | 960 мм |
| Ширина | 790 мм |
| Высота | 2180 мм |
| Масса | 2310 кг |
| Нормативный документ | Серия 1.133-1 |
Цена:
Рассчитать стоимостьСтеновые легкобетонные блоки толщиной 60 см по Серии 1.133-1.
НБУ-9/8.22.6-4 Простеночный блок температурного шва.